- Вентиляція
- Вентиляція для бомбосховищ
- Будівництво та реконструкція бомбосховищ
- Промислова вентиляція
- Вентиляція для виробничих приміщень
- Вентиляція комерційних приміщень
- Вентиляція медичних закладів
- Чисті приміщення для медичних установ
- Кондиціювання
- Промислові системи кондиціювання
- Кондиціювання виробничих приміщень
- Аспірація
- Проектування
- Монтаж систем вентиляції та кондиціювання
- Постачальник обладнання систем вентиляції та кондиціювання
ЗВОРОТНІЙ ЗВ'ЯЗОК
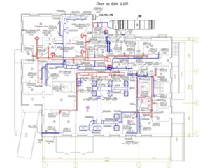
Проектування систем вентиляції та кондиціювання
Проектування систем вентиляції та кондиціювання — являє собою складний процес, який складається з багатьох етапів. В даній статті ми розкриємо цей процес детально.

Етапи проектування систем вентиляції та кондиціювання

Проектування систем вентиляції та кондиціювання вимагає глибоких знань, професійного підходу та крапотливої роботи. Ось основні етапи:
- Аналіз та збір вхідних даних
- Розробка концепції
- Розрахунки та підбір обладнання
- Розробка документації
- Узгодження та затвердження проекту
- Поставка обладнання та монтаж системи
- Запуск та налагодження системи
Проектування систем вентиляції та кондиціювання для різних типів приміщень
В залежності від типу приміщення, вимоги до систем вентиляції та кондиціювання можуть суттєво відрізнятися. Наприклад, в офісних будівлях та торгових центрах основний акцент ставиться на комфорт працівників та відвідувачів. Для промислових об’єктів важливим є витривалість обладнання та його здатність впоратися з важкими умовами.
Проектування систем аспірації
Системи аспірації використовуються для видалення забрудненого повітря з приміщень. Процес проектування аспіраційної системи включає в себе вибір відповідного обладнання та розрахунок параметрів системи.
Проектування чистих приміщень
Чисті приміщення вимагають особливого підходу до вентиляції. Система вентиляції повинна забезпечувати постійний потік чистого повітря та видалення забруднень. Це особливо важливо для медичних установ, лабораторій та виробництв з високими вимогами до чистоти.
Енергоефективність в системах вентиляції та кондиціювання
Правильне проектування систем вентиляції та кондиціювання є ключовим для забезпечення високої енергоефективності. Вибір енергоефективного обладнання, правильне розміщення його елементів, а також їх правильна настройка ведуть до економії енергії та зниження витрат.
Використання сучасних технологій, таких як вентиляція з рекуперацією тепла, може значно підвищити енергоефективність системи.

Індивідуальний підхід до кожного проекту
“Світ вентиляційного обладнання” прагне створювати системи вентиляції та кондиціювання, які задовольняють вимоги кожного клієнта. Ми ретельно аналізуємо ваші потреби та пропонуємо рішення, які відповідають вашим очікуванням та бюджету.
Супровід на всіх етапах реалізації проекту
Працюючи з нами, ви отримуєте повний комплекс послуг – від розробки проекту до монтажу та налаштування систем вентиляції та кондиціювання. Ми також надаємо гарантійне та післягарантійне обслуговування, що забезпечує надійність та довговічність наших систем.
Звертайтеся до “Світ вентиляційного обладнання” для отримання професійного проектування систем вентиляції та кондиціювання. Ми гарантуємо високу якість наших послуг та задоволення ваших потреб.
ПРОФЕСІЙНІ ПОСЛУГИ
СВІТ ВЕНТИЛЯЦІЙНОГО ОБЛАДНАННЯ
Створюємо індивідуальні рішення які відповідають потребам кожного клієнта